Imagine 103

De inchiriat spatiu de birou cu view 121 mp + 64 mp terasa Bacau

ID: P263240 Bacau, Ultracentral 1
2.220€
Descriere
Vă oferim spre închiriere un etaj întreg unde v-ați putea desfășura activitatea, în zona ultracentrală a orașului, zonă intens circulată.
Este vorba despre clădirea CITY CENTER, localizată în Piața Revoluției, nr. 1 (fosta clădire BancPost).

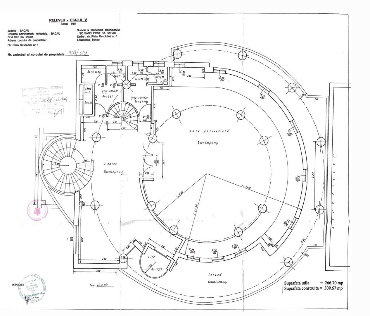
Întreg spațiul se află la etajul 5 iar atuul principal îl reprezintă terasa de 63.80 mp cu vedere asupra orașului.
Suprafața utilă este de 121 mp repartizați printr-o încăpere open space + birou, 2 grupuri sanitare bărbați/femei (doar pentru cei aflați la etajul 5) și holul.

Accesul în cladire se face din strada principală iar în interior se circulă pe scări sau cu liftul panoramic.

Puncte forte:
- zona ultracentrală, intens circulată
- parcări în fața și jurul clădirii
- datorită numărului ridicat de chiriași din clădire vă pot genera mulți clienți și publicitate
- plata utilităților și a costurilor de mentenanță în funcție de suprafața închiriată

• Pretabil pentru săli de conferință, call-center, birouri și alte domenii de activitate.

Vă invităm la vizionare pentru a descoperi beneficiile acestei clădiri cu poziționare excelentă!
Caracteristici
  • ID:P263240
  • Nr. camere:2
  • S. utila:185.00 mp
  • Comp.:Partial compartimentat
  • Clasificare:A
  • Etaj:Etaj 5
  • Nr. bai:2
  • An constructie:1990
  • Regim inaltime:D+P+6
Video
Specificatii
Curent
Apa
Canalizare
Gaz
CATV
Telefon
Acces internet
Centrala proprie
Calorifere
Parchet
Gresie
Ferestre Termopan
Videointerfon
Lift
Localizare
Catalin Cheta
Esti interesat de aceasta proprietate ?
Proprietati similare
Exclusivitate De inchiriat Imagine 36
Spatiu birouri de 240 mp in Zona Industriala - Iasi
Iasi, Zona industriala 9€/mp
5 camere 1 baie 240mp