Imagine 103

Spatiu birouri de 240 mp in Zona Industriala - Iasi

ID: P262753 Iasi, Zona industriala 1
9€/mp
Descriere
Dorești să închiriezi un spatiu pentru birouri, într-o zonă ușor accesibilă?

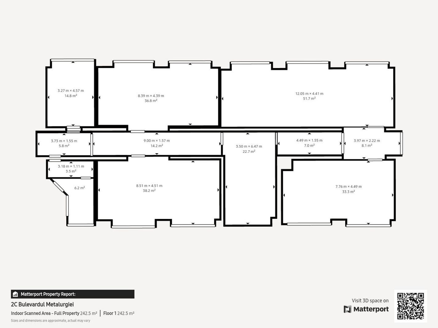
Vă propunem spre închiriere intreg etajul 2 in suprafata de 240 mp utili, compartimentati in 5 camere, grupuri sanitare si holuri, al unei clădiri individuale, poziționată la strada principală Metalurgiei 4, in zona Industrială Iași.
Cladirea este recent construită iar regimul de înălțime al acesteia este P+2 etaje.
• Parterul si etajul 1 sunt închiriate unui show-room de mobilă și accesorii.

Aspecte:
- Încălzire pe bază de aer
- Chiller pentru răcire
- Grupuri sanitare
- Acces la etaj pe scări
- Încăperi luminoase și spațioase
- Detectoare fum
- Supraveghere video și alarmă clădire
- Program flexibil de acces în clădire
- Trafic intens
- Mijloc de transport în comun
- Disponibil imediat

Pretabil pentru diverse activități: birouri, cabinete, săli cursuri/activități, cosmetică/masaj, etc.
Vecinătăți: Vel Pitar, sediul FAN CURIER, Amazon Development Center, Toyota Iasi Est, Centrul Comercial Felicia, etc.

Vă oferim o soluție excelență pentru afacerea dumneavoastră!
Pentru detalii și vizionare nu ezitați să ne contactați!
Caracteristici
  • ID:P262753
  • Nr. camere:5
  • S. utila:240.00 mp
  • Comp.:Compartimentat
  • Clasificare:A
  • Etaj:Etaj 2
  • Nr. bai:1
  • Regim inaltime:P+2
Specificatii
Curent
Apa
Canalizare
Curent trifazic
CATV
Telefon
Acces internet
Convectoare
Aer conditionat
Parchet
Mocheta
Ferestre cu deschidere
Exterior cladire
Lumina naturala
Iluminat interior sistem LED
Parcare proprie
Apometre
Contor caldura
Nemobilat
Interfon
Detectoare fum/temperatura
Control electric individual
Supraveghere video
Localizare
Catalin Cheta
Esti interesat de aceasta proprietate ?