Imagine 103

Spatiu de birouri central de 338 mp etaj 1, Bd. Mamaia - Constanta

ID: P263236 Constanta, Centru 1
3.377€
Descriere
Spațiu de închiriat – 338 mp utili, ultracentral, Constanța

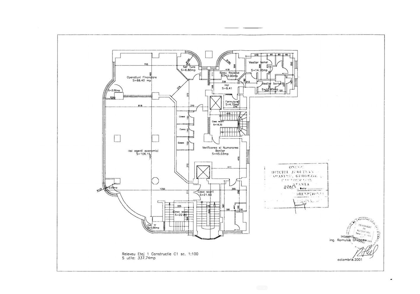
Vă oferim spre închiriere un spațiu generos și modern, cu o suprafață utilă de 338 mp, situat în zona ultracentrală a orașului Constanța, pe strada Bogdan Vodă. Proprietatea este amplasată la etajul 1 al unei clădiri cu regim de înălțime D+P+6E, având acces facil direct din strada principală.

• Caracteristici principale:
Compartimentare funcțională: spațiul este organizat în mai multe încăperi, inclusiv birouri, grupuri sanitare, vestiare, holuri, oferind flexibilitate în configurarea mediului de lucru.

Utilități complete: toate dotările necesare sunt disponibile, inclusiv un tablou electric separat, pentru a asigura un mediu de lucru eficient și sigur.

Suprafață generoasă: cele 338 mp permit organizarea eficientă a zonelor de lucru, fiind ideal pentru activități diverse precum:
- Consultanță financiară;
- IT & software development;
- Activități comerciale sau servicii profesionale;
- Vânzări și suport clienți.

• Facilități suplimentare:
Pentru nevoi logistice, există posibilitatea închirierii demisolului, cu o suprafață utilă de 286 mp, perfect pentru arhivare, depozitare sau alte utilizări. Accesul la subsol este asigurat atât prin lift, cât și pe scări.

• Avantaje:
Localizare premium: poziționarea ultracentrală oferă acces facil și vizibilitate excelentă.
Flexibilitate: spațiul poate fi personalizat în funcție de cerințele activității dumneavoastră.
Confort și funcționalitate: proiectat pentru a satisface nevoile unui mediu profesional de lucru.

Pentru detalii suplimentare sau pentru a programa o vizionare, vă rugăm să ne contactați. Acest spațiu reprezintă o oportunitate excelentă pentru companiile care doresc să se dezvolte într-un mediu profesional de top.
Caracteristici
  • ID:P263236
  • Nr. camere:6
  • S. utila:337.74 mp
  • Comp.:Compartimentat
  • Clasificare:A
  • Etaj:Etaj 1
  • Nr. bai:2
  • An constructie:1989
  • Regim inaltime:D+P+6
Specificatii
Curent
Apa
Canalizare
Gaz
Curent trifazic
CATV
Telefon
Acces internet
Centrala proprie
Aer conditionat
Parchet
Gresie
Ferestre Termopan
Nemobilat
Lift
Localizare
Catalin Cheta
Esti interesat de aceasta proprietate ?